










Wohnheim, Heilbronn
2016 - 2017
LPH 1 - 9
Das Wohnheim liegt am nördlichen Stadttor von Heilbronn. Auf 3 Geschossen und von einem Laubengang erschlossen verteilen sich 23 kompakte Wohneinheiten in Holzmodulbauweise. Das Gebäude gibt eine Antwort auf die Frage nach zukünftigen Wohnformen - speziell für Nutzergruppen wie Studenten und Betriebsangehörige. Dabei reagiert die Konzeption auf einen häufigeren Nutzerwechsel und bietet preiswerten, flächeneffizienten Lebensraum mit hoher Aufenthaltsqualität. Der enegetische Ansatz des KFW-55-Hauses ist auf eine weitgehende Selbstversorgung mit erneuerbaren Energien zur Minimierung der Nebenkosten ausgerichtet. Eine Photovoltaikanlage erzeugt Strom und speichert ihn in der Hausbatterie. Gleichzeitig wird der Strom zur Wassererwärmung genutzt.
Wohnheim, Heilbronn - Aussenansicht
Wohnheim, Heilbronn - Aussenansicht
Wohnheim, Heilbronn - Aussenansicht
Wohnheim, Heilbronn - Innenraum
Wohnheim, Heilbronn - Innenraum
Wohnheim, Heilbronn - Innenraum
Wohnheim, Heilbronn - Innenraum
Wohnheim, Heilbronn - Innenraum
Wohnheim, Heilbronn - Lageplan
Wohnheim, Heilbronn - Gebäudestruktur
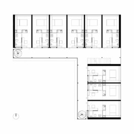
Wohnheim, Heilbronn - Grundriss Regelgeschoss
Kindergarten, Heilbronn
2019 - 2022
LPH 1 - 9
Fotos
Dietmar Strauß
Am westlichen Ortsrand Neckargartachs liegt das Neubaugebiet „Bernhäusle“. Dort befindet sich das Baugrundstück für die 3-gruppige Kindergartentagesstätte. Der Entwurf wird geprägt von fünf Volumen, die in ihrer Gesamtheit einen zweigeschossigen Baukörper mit markantem Dach bilden – jedes für sich kann gleichzeitig als einzelnes Häuschen in der Fassade abgelesen werden. Die prägnante Ansicht unterstützt die Identifikation der Kinder mit ihrem Kindergarten.
Die fünf Dachgiebel sind in ihrer Richtung um neunzig Grad zur Hauptfirstrichtung des Baugebiets gedreht. Der Kindergarten ist damit schon weithin als besonderer Baustein im Quartiersgefüge sichtbar.
Holzständerkonstruktion mit Holzelementdecken und -dach.
